Rouppe

Transformation d’un hôtel de maître et ses écuries en 2 logements et une annexe

Le projet s’inscrit dans un ancien hôtel de maître avec écuries, situé au cœur de Bruxelles. Profondément transformé au fil du temps afin de répondre aux usages successifs qui l’ont occupé, l’ensemble bâti a progressivement saturé la parcelle.

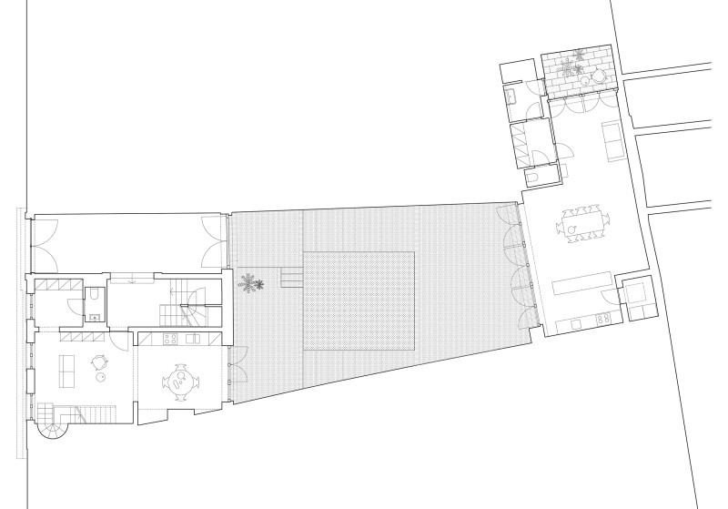
La demande vise la reconversion du bâtiment en deux logements destinés à deux couples (les parents et leur fils adulte avec sa compagne). Deux duplex s’y implantent naturellement — l’un du rez-de-chaussée au premier étage, l’autre du deuxième étage aux combles — en s’appuyant sur la distribution existante et en limitant les interventions structurelles.

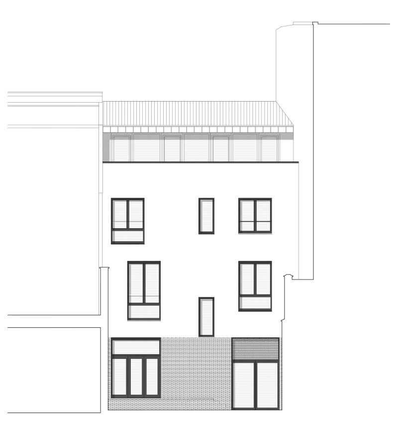
La démolition des annexes accumulées au fil du temps rétabli la lisibilité des volumes d’origine. Le corps principal est à nouveau dégagé et séparé de la maison arrière par une vaste cour-jardin commune aux deux logements. Les anciennes écuries sont quant à elles réaffectées en atelier/studio partagé.

Le duplex supérieur tire parti de la toiture par l’aménagement d’une longue terrasse, sur laquelle les chambres s’ouvrent généreusement afin d’offrir des vues étendues sur la ville.

La façade à rue, d’une sobre harmonie néoclassique, est restaurée dans le respect de ses éléments d’origine. Aucune intervention ne vient altérer la discrétion de sa vocation résidentielle.

180613 Rouppe 63 C
180613 Rouppe 65 C
180613 Rouppe 59 C
180613 Rouppe 42 C
180613 Rouppe 84 C
180613 Rouppe 225 C
180613 Rouppe 110 C
180613 Rouppe 145 C
180613 Rouppe 184 C
180612 Rouppe Faade Avant Page 0001
180612 Rouppe Faade Arrire Page 0001
180612 Rouppe Plan Rdc Page 0001
180612 Rouppe Plan 1er Tage Page 0001
180612 Rouppe Plan 2me Tage Page 0001
180612 Rouppe Plan 3me Page 0001
180612 Rouppe Axo Cour Intrieure Page 0001
180612 Rouppe Axo Escaliers Page 0001

Date

2014–2018

Lieu

Bruxelles (B)

Type

Logement

Statut

Livré

Surface

546 m2

Destinataire

Privé

Stabilité

BESP

PEB

Enesta