Alouettes

Extension d’une maison unifamiliale dans une cité jardin classée

Implanté dans la cité-jardin du Vogelzang, un lotissement coopératif développé à Woluwe-Saint-Pierre dès 1922, dans l’élan des cités-jardins bruxelloises des années 1920, le projet prend place dans un tissu résidentiel marqué par une unité paysagère et architecturale.

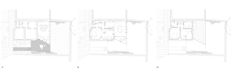
Le projet consiste en l’extension d’une maison unifamiliale trois façades pour un couple et ses enfants. L’intervention s’accompagne également d’un travail sur les abords, avec un objectif clair : redonner de la générosité aux espaces de vie et renforcer le lien au jardin. Un volume largement ouvert et lumineux recompose les usages sur deux niveaux et met en scène les vues ainsi que les parcours quotidiens.

À l’intérieur, la communication existante entre les niveaux est doublée par une nouvelle volée d’escalier métallique légère qui structure l’espace et fait profiter des vues vers le jardin. L’extension est pensée comme une pièce de séjour en relation directe avec l’extérieur, prolongée par le jardin immédiatement accessible et habitable.

190611 Alouettes Stijn Bollaert 32
190611 Alouettes Stijn Bollaert 20
190611 Alouettes Stijn Bollaert 27
190611 Alouettes Stijn Bollaert 14
190611 Alouettes Stijn Bollaert 13
190611 Alouettes Stijn Bollaert 11
190611 Alouettes Stijn Bollaert 1
170608 Alouettes Vue 1
260304 ALOUETTES   plan masse site internet
260304 ALOUETTES coupe2 site internet
260304 ALOUETTES coupe3 site internet
260304 ALOUETTES   plans site internet
260304 ALOUETTES coupe pay site internet

Date

2014–2018

Lieu

Woluwe-Saint-Pierre (B)

Type

Logement

Statut

Livré

Surface

75 m2

Destinataire

Privé

Stabilité

JZH

PEB

Enesta

Photographe

Stijn Bollaert