Pavots

Transformation et agrandissement d’une maison unifamiliale et de son jardin

260305 PAVOTS  collage1 site internet
260305 PAVOTS  collage2 site internet
260305 PAVOTS coupes2 site internet
260305 PAVOTS coupes site internet
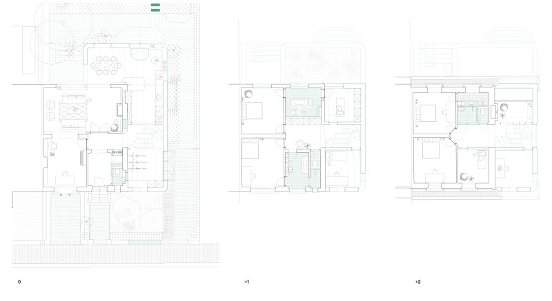
260305 PAVOTS plans site internet

Date

2024

Lieu

Schaerbeek (B)

Type

Logement

Statut

En cours

Surface

500 m2

Destinataire

Privé

Stabilité

TAAC

PEB

Enesta