Fierlant

Transformation d'un immeuble de 2 appartements en un immeuble de 3 appartements

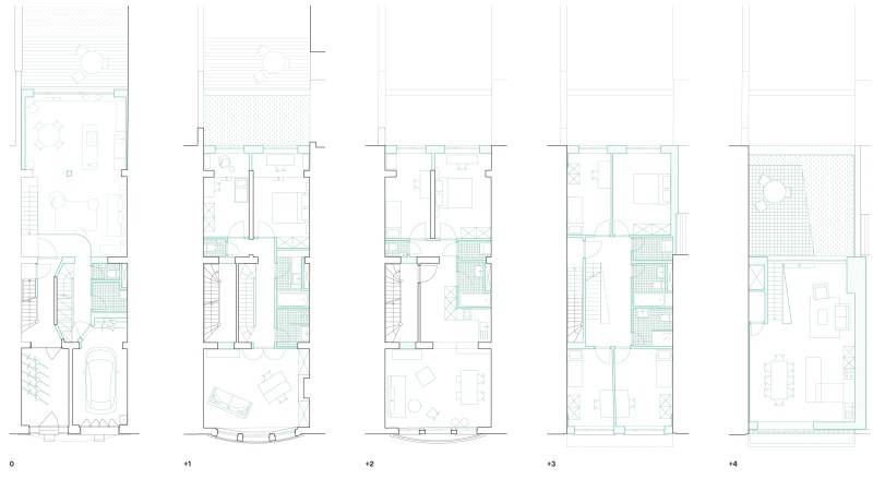
Le bâtiment transformé était un immeuble de rapport entre mitoyens, composé de deux appartements répartis sur un rez-de-chaussée et deux étages.

Le projet vise à augmenter le nombre et la qualité des logements, tant en termes d’habitabilité, de durabilité que de performance énergétique, tout en respectant les qualités du bâtiment existant, l’intérieur d’îlot et les immeubles voisins.

Trois logements sont désormais proposés : deux duplex et un simplex.

La nouvelle organisation intérieure permet de mieux exploiter la façade avant : ses trois fenêtres sont désormais attribuées à une grande pièce de vie d’environ 24 m². Le décloisonnement met en valeur la composition intérieure du bâtiment.Les hauteurs sous plafond généreuses et les vues variées offrent des spatialités intérieures intéressantes. Chaque logement dispose d’un espace extérieur, de plus les chambres et séjours sont confortables, avec des surfaces supérieures de 20 % aux minima imposés par le RRU.

Lppa Web Fierlant 1
Lppa Web Fierlant 2
Lppa Web Fierlant 3
Lppa Web Fierlant 4
Lppa Web Fierlant 5
Lppa Web Fierlant 6
Lppa Web Fierlant 7
Lppa Web Fierlant 8
Lppa Web Fierlant 9
Lppa Web Fierlant New
Lppa Web Fierlant 10
Lppa Web Fierlant 11
Lppa Web Fierlant 12

Date

2019–2023

Lieu

Forest (B)

Type

Logement

Statut

Livré

Surface

530 m2

Destinataire

Privé

Stabilité

TAAC

PEB

Enesta

Photographe 

Stijn Bollaert