Jourdan

Construction d’un immeuble de 4 appartements deux et trois chambres

À l’emplacement d’un ancien garage, un immeuble contemporain fait le pari d’opérer une transition entre un immeuble de logement et une parcelle d’angle qui n’est bâtie qu’en rez-de-chaussée. L’immeuble prolonge l’alignement à rue puis, tel un pivot, se retourne, dévoilant un mitoyen paré des mêmes atours que la façade à rue, laissant, par cette gymnastique de l’angle, pressentir la profondeur de l’îlot. La terrasse du quatrième étage de la façade à rue dématérialise l’édifice, annonce la dent creuse voisine et atténue subtilement le gabarit sans hypothéquer la possibilité du numéro 28 de remplir cette dent creuse.

Le projet, par la hiérarchie de sa façade, sa sobriété, sa hauteur relativement basse et le soin accordé à ses matériaux, s’insère à la fois en force et en douceur dans la rue.

Les façades sont ponctuées de bandeaux en pierre naturelle et habillées avec un bardage de bois ajouré. Le bois est posé en section variable afin d’en faire vibrer sa surface et anticiper son vieillissement. La patine est ainsi maitrisée.

La façade latérale, autant visible de l’espace public que la façade à rue, est traitée avec le même soin et le revêtement doit pouvoir en être démontable au cas où le voisin déciderait de construire la dent creuse mitoyenne.

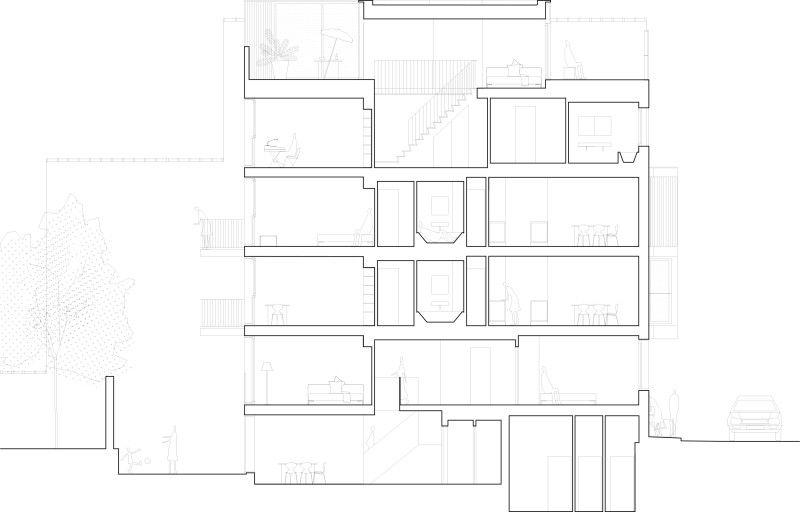
L’immeuble comprend 4 logements, tous accessibles aux personnes à mobilité réduite.

Tous les logements disposent d’espaces extérieurs de qualité : terrasses ou jardin. Les logements sont modulables afin de pouvoir s’adapter à des publics différents mais aussi aux différents usages des habitants. De larges portes coulissantes intégrées dans les murs permettent aux habitants de faire varier les espaces suivants leurs humeurs.

L’immeuble est passif. Il est construit dans des matériaux respectueux de l’environnement. Les logements sont équipés d’une ventilation double flux, d’une isolation poussée, d’une chaudière à condensation.

02 Ludmilla Cerveny Lpp Jourdan 007
03 Ludmilla Cerveny Lpp Jourdan 029
06 Ludmilla Cerveny Lpp Jourdan 013
07 Ludmilla Cerveny Lpp Jourdan 012
08 Ludmilla Cerveny Lpp Jourdan 048
09 Ludmilla Cerveny Lpp Jourdan 045
11 Ludmilla Cerveny Lpp Jourdan 055
13 Ludmilla Cerveny Lpp Rue Jourdan 022
14 Ludmilla Cerveny Lpp Rue Jourdan 003
15 Ludmilla Cerveny Lpp Rue Jourdan 017
16 Ludmilla Cerveny Lpp Rue Jourdan 019
Jourdan Plans
Jourdan Coupe

Date

2010–2017

Lieu

Saint-Gilles (B)

Type

Logement

Statut

Livré

Surface

598 m2

Destinataire

Privé

Stabilité

Util

PEB

Enesta

Photographe

Ludmilla Cerveny