CSA

Transformation lourde d’un hôtel de maître répertorié à l’inventaire du patrimoine en bureaux pour le Conseil Supérieur de l’Audiovisuel

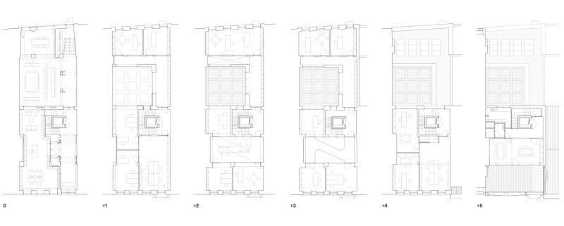
La rénovation lourde de cet ensemble bâti répertorié à l’inventaire du patrimoine, se fonde sur une ré-interprétation du bâtiment existant en s’appuyant sur l’histoire du lieu à transformer. Le bâtiment est, dès l’origine, traversant sur toute la largeur de l’îlot, composé d’un corps de bâtiment rue Royale abritant un hôtel particulier et d’un corps de bâtiment rue de la Bobine hébergeant les écuries et les dépendances.

Au fil des années l’ensemble construit est rehaussé, la cour réduite à un atrium éclairant les bureaux d’une banque répartis aux étages des ailes réunies.

La réinterprétation que nous faisons du bâtiment se base sur un respect de ses éléments structurels et architecturaux. La nouvelle intervention se situe essentiellement au niveau de l’atrium. Élargi et percé de nouvelles fenêtres, il donne une identité forte aux espaces qui l’entourent. Lieu de vues croisées et de regards perdus ; Il orchestre un jeu de mise en scène renforcé par l’absence d’allèges des fenêtres. Au rez-de-chaussée, l’entrée cochère est restaurée renouant avec l’axe transversale d’origine qui relie la rue Royale à l’impasse de la Bobine. Cet axe ouvre le rez-de-chaussée à l’espace public, dessert le centre de documentation, accessible sur rendez-vous à des personnes extérieures à l’institution, dessert la grande salle de réunion lieu de projections et de festivités.

05 190227 Csa Visite Vincent Rez Barcelone 111 Corrige Vp
01 190227 Csa Visite Vincent Rez Barcelone 105 Corrige Vp
07 170710 Csa Retouches Rapides Vincent 5
06 170710 Csa Retouches Rapides Vincent 2
09 170706 Csa Photos Vincent D90 39 C
10 170710 Csa Retouches Rapides Vincent 7
03 190227 Csa Visite Vincent Rez Barcelone 86 Corrige Vp
13 20180627 153740
260303 Csa Coupe Internet
260303 Csa Plans Internet

Date

2015–2019

Lieu

Bruxelles (B)

Type

Bureaux

Statut

Livré

Surface

1.385 m2

Destinataire

FWB, CSA

Stabilité

JZH

TS

DTS

PEB

Enesta

Acoustique

BANP

Signalétique

PLMD

Plasticien

Éric Valette