Angélique

Extension et transformation d’une maison unifamiliale

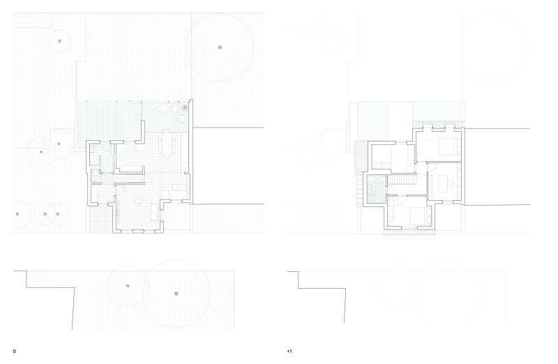
En bordure du quartier du Biéreau à Louvain-la-Neuve, le projet porte sur la transformation légère et l’agrandissement d’une maison des années 1970 pour un couple de retraités.

Les qualités spatiales de l’habitation ne nécessitent pas d’intervention lourde pour l’adapter au mode de vie de ses occupants. Le projet se concentre dès lors sur une extension qui prolonge le séjour vers le jardin. Largement vitrée, elle renforce la relation à l’extérieur et permet également l’aménagement d’une terrasse couverte, offrant un nouvel espace de transition entre intérieur et jardin.

La cuisine, en continuité avec le séjour, est réaménagée afin de profiter des vues vers la nouvelle terrasse couverte et d’améliorer les usages au quotidien. À l’étage, la salle de bains est mise à jour par l’ajout d’une douche et le remplacement des carrelages, tout en conservant une partie des appareils sanitaires existants.

01 191123 Angelique 25c
02 191111 Angelique Montage Meubles 59c
04 191111 Angelique Montage Meubles 83c
07 191111 Angelique Montage Meubles 46
160920 Angelique Vue Ct Jardinc
260303 Angelique Plan Masse Internet
260303 Angelique Plans Internet
260303 Angelique Coupe 2 Internet
260303 Angelique Coupe 1 Internet
260303 Angelique Coupe Fac Internet

Date

2016–2019

Lieu

Louvain-La-Neuve (B)

Type

Logement

Statut

Livré

Surface

179 m2

Destinataire

Privé

Stabilité

François Pierret

PEB, CSS

Imhotep